
Luksusowa lokalizacja w Tarnowie
ZIELNA.PL
Dom energooszczędny w Tarnowie – Zbylitowska Góra ul. Zielna w zabudowie bliźniaczej.
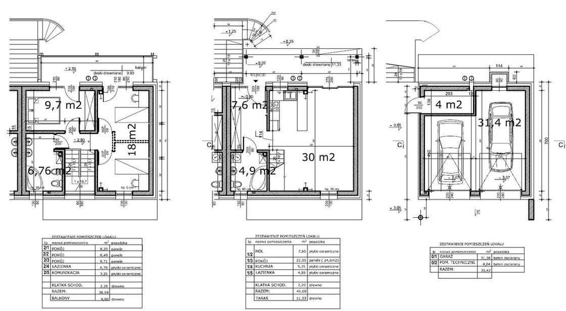
Nowoczesny projekt wykonany w bardzo wysokim standardzie technicznym i z dbałością o środowisko. Mieszkanie o powierzchni 115 m2 z dwustanowiskowym garażem w piwnicy, podjazdem z kostki brukowej ,drewnianym tarasem 12m2, balkonem 9,5 m2, dodatkową piwniczką 5m2 oraz dużym ogrodem szerokości 8m i długości 22m.
TWÓJ NOWY
DOM CZEKA.
Kontakt z działem sprzedaży
Luksusowe mieszkania
Dom w stanie deweloperskim w Tarnowie , cicha spokojna okolica blisko natury a jednocześnie lokalizacja jedynie kilka minut jazdy samochodem od centrum miasta ( ok 5km ) oraz autostrady (A4). Komunikacja miejska- linie autobusowe 14 i 24. W okolicy domy jednorodzinne oraz tereny zielone. Wygodny dostęp do bogatej infrastruktury osiedlowej (park Sośnica, sklepy ,supermarket Dąbrówka, przedszkola, szkoła podstawowa, szkoła średnia IVLO, restauracje, kościół, przystanek autobusowy)
Stan deweloperski podwyższony : pustak beton komórkowy ,pełna elewacja zewnętrzna , blacha RUKKI CLASSIC ,tynki wewnętrzne gipsowe ,okna DREWNIANE trzyszybowe o współczynniku Ug 0,7 W/(m²*K) ,drzwi wejściowe drewniane , instalacje wewnętrzne i zewnętrzne, instalacja alarmowa , ogrzewanie podłogowe ,piec kondensacyjny , rekuperacja powietrza, wentylacja mechaniczna, przyłącza zewnętrzne gaz, prąd, światłowód, kanalizacja miejska, działka ogrodzona, bramy garażowe z automatyką ,podjazd z kostki brukowej .
Zapraszamy do obejrzenia !
Więcej Detali
Termin realizacji: IV kwartał 2020
Cena: 5000 zł/m2
Ilość poziomów 3
Powierzchnia domu 115 m2
Piwnica 36m2
Parter 39,5m2
Piętro 39,5m2
Powierzchnia działki 300 m2
Duży ogród południowy 8m x 22 m
Rok budowy 2020
Ocieplenie styropian 25 cm / 20 cm
Ogrzewanie gazowe piec kondensacyjny , ogrzewanie podłogowe w całym budynku.
Rekupertator , wentylacja mechaniczna , gruntowy wymiennik ciepła.
























